This 3 bedroom townhome 2.5 baths has everything for the perfect beach vacation. | Condo in Captiva

3 Bedroom Condo in Captiva
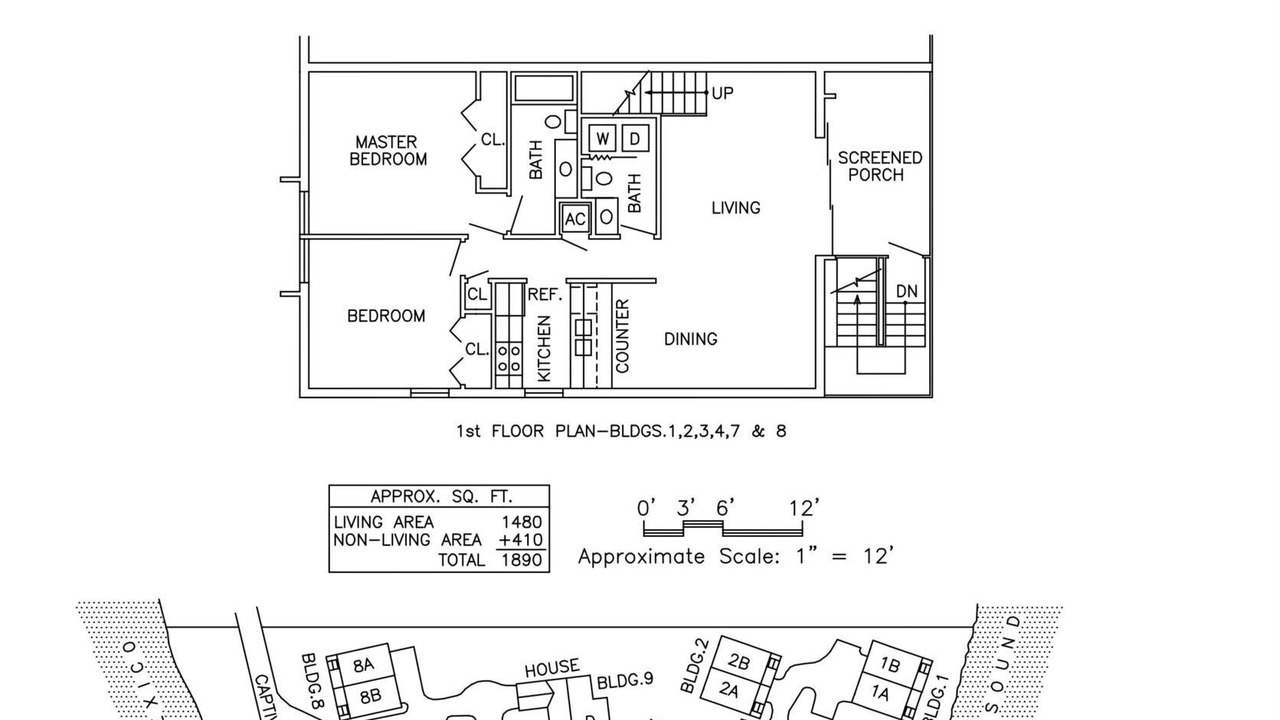
This 3 bedroom townhome with 2 1/2 baths has everything you need for the perfect beach vacation. Relax to bay views from your screened lanai opening off the open floor plan living area-- including a comfortable seating area with a flat screen smart TV and DVD, a large dining room table and galley kitchen with plenty of cabinet space. The first guest bedroom has a king bed and tropical garden views. The second guest bedroom has twin beds and tropical garden views. The shared guest bathroom has an updated shower/tub combo and a spacious vanity. A staircase leads to a large, light and airy master bedroom suite featuring a king sized bed, , seating area, ample closet space, attached master bathroom. The cottage also offers a powder room with full-sized washer and dryer, digital cable and high speed WIFI service.
The condo is located in the Captiva Shores community in the exclusive Tween Waters area. The best of both worlds, Captiva Shores stretches from Gulf to Bay, has on-premises boat dockage available, a large tropical heated pool, pool house, lush tropical landscaping, and private access to miles of the island's famed and recently replenished shell-strewn beach. Enjoy a spectacular sunrise on the dock and take in the endless sunset over the Gulf within steps of your stay. Captiva Shores is also just a short stroll down the beach or through town to charming restaurants with live music, a general store, shops and many fun island activities.
** Value Properties are units that enjoy great island locations offered at a bargain due to the worn conditions of the unit. These assessments are determined by Kingfisher management as well as repeated guest feedback indicating the property is in need of updating. Units are clean and maintained, but guests are encouraged to set expectations appropriately depending upon the vacation experience desired.
Kingfisher Vacations will only book reservations up to 51 weeks in advance.
All our properties have contact free check-in, no need to stop at the office (or a stop light none of those here)!
***
Captiva Shores offers townhome style floor plans and privacy in this 8 unit complex. Gulf to Bay location makes this a unique place for boaters and beach walkers. Enjoy relaxing by the pool, eating at the picnic area or fishing from the dock.
This 3 bedroom townhome 25 baths has everything for the perfect beach vacation is located in Captiva. This 3 bedroom townhome 25 baths has everything for the perfect beach vacation provides accommodation, featuring Air Conditioner, TV, Balcony/Terrace, among other amenities. This Condo features Air Conditioner, TV, Balcony/Terrace, to make your stay a comfortable one.
This 3 bedroom townhome 25 baths has everything for the perfect beach vacation has 3 Bedrooms , 2 Bathrooms, and max occupancy of 6 people. The minimum rental for this property is 1 nights, but this can change depending on the season you plan on staying. Previous guests have given good rated it, and VRBO labeled it a top-rated Condo because of the excellent services rendered by the owner or manager of this Condo, and has consistently provided great experiences for their guests. Most families or guests that use it recommend it to their friends and some of them are repeat guests. Condo has a friendly neighborhood, and the Captiva has interesting places to visit. If you want to learn more about the Condo in Captiva, such as places to visit and things to do nearby, you can check below to learn more.
Amenities
Policies
Extra-person charges may apply and vary depending on property policy government-issued photo identification and a credit card, debit card, or cash deposit may be required at check-in for incidental charges host has indicated there is a smoke detector on the property host has not indicated whether there is a carbon monoxide detector on the property; consider bringing a portable detector with you on the trip onsite parties or group events are strictly prohibited safety features at this property include a deadbolt lock special requests are subject to availability upon check-in and may incur additional charges; special requests cannot be guaranteed this property is managed through our partner, vrbo. you will receive an email from vrbo with a link to a vrbo account, where you can change or cancel your reservation